
Zevenwouden 258, 3524 CX UTRECHT
verkocht
Omschrijving
Belegging te koopSurinaams Eethuys gelegen in het hart van Winkelcentrum Lunetten. In het winkelcentrum zijn verschillende supermarkten, (afhaal-) restaurants en andere detailwinkels gevestigd. Door de ligging in een winkelcentrum is de natuurlijke passanten stroom hoog. Winkelcentrum Lunetten beschikt over een tal van winkels en horecabedrijven. Trekkers zijn de Trekpleister, Albert Heijn en de Bruna.
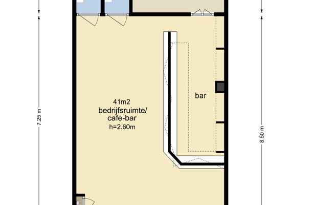
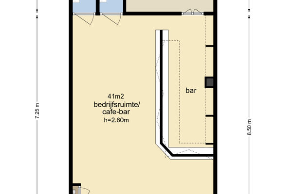
Het Eethuys heeft een oppervlakte van circa 53,74m² VVO, waarvan 41m² de verkoopruimte betreft en 7m² de keuken en opslag. Gasten van het Surinaamse Eethuys kunnen plaatsnemen in het restaurantgedeelte of op het terras. Het restaurant beschikt over 20 zitplaatsen en op het terras ook over 14 zitplaatsen.
Ligging
In de Utrechtse wijk Lunetten met ca. 11.000 inwoners. Lunetten is een sub wijk van Zuid, bestaande uit de buurten Lunetten-Noord en Lunetten-Zuid. Lunetten is een stedenbouwkundig experiment uit de jaren '70. Deze wijk ligt op enige afstand van het centrum van Utrecht.
Openingstijden
Er is een 24-uurs vergunning aanwezig. De exploitant kan de openingstijden zelf bepalen.
Bereikbaarheid
Vanaf het centrum van Utrecht is Lunetten met de bus en de trein goed bereikbaar. Een NS-station ligt op vijf minuten loopafstand.
Parkeermogelijkheden
Voldoende. Tegenover het object en vrij parkeren.
De jaarlijks geïndexeerde huursom bedraagt € 19.800,00. De jaarlijkse VVE bijdrage bedraagt € 980,30 per jaar en de bijdrage jaarlijkse canon bedraagt circa € 1.000 per jaar. Huurcontract ingangsdatum 01-02-2025 voor 5+5 jaar.
Deze belegging maakt onderdeel uit van een grotere beleggingsportefeuille en kan eveneens in combinatie met de eveneens verhuurde belendende winkelpanden op Zevenwouden 258A en 258B aangekocht worden voor een totale prijs van € 725.000,- kosten koper.
Deze informatie is met zorg samengesteld. Voor de juistheid daarvan kan echter geen aansprakelijkheid worden aanvaard, noch kan aan de vermelde gegevens enig recht worden ontleend. Alle opgaven van eventuele afmetingen zijn indicatief. Deze informatie dient slechts als uitnodiging om in onderhandeling te treden en kan derhalve niet worden beschouwd als een aanbod of offerte.
Openingstijden
Er is een 24-uurs vergunning aanwezig. De exploitant kan de openingstijden zelf bepalen.
Bereikbaarheid
Vanaf het centrum van Utrecht is Lunetten met de bus en de trein goed bereikbaar. Een NS-station ligt op vijf minuten loopafstand.
Parkeermogelijkheden
Voldoende. Tegenover het object en vrij parkeren.
De jaarlijks geïndexeerde huursom bedraagt € 19.800,00. De jaarlijkse VVE bijdrage bedraagt € 980,30 per jaar en de bijdrage jaarlijkse canon bedraagt circa € 1.000 per jaar. Huurcontract ingangsdatum 01-02-2025 voor 5+5 jaar.
Deze belegging maakt onderdeel uit van een grotere beleggingsportefeuille en kan eveneens in combinatie met de eveneens verhuurde belendende winkelpanden op Zevenwouden 258A en 258B aangekocht worden voor een totale prijs van € 725.000,- kosten koper.
Deze informatie is met zorg samengesteld. Voor de juistheid daarvan kan echter geen aansprakelijkheid worden aanvaard, noch kan aan de vermelde gegevens enig recht worden ontleend. Alle opgaven van eventuele afmetingen zijn indicatief. Deze informatie dient slechts als uitnodiging om in onderhandeling te treden en kan derhalve niet worden beschouwd als een aanbod of offerte.