
Zevenwouden 258 A, 3524 CX UTRECHT
verkocht
Omschrijving
Belegging te koopCafetaria Lunetten is al meer dan 25 jaar een begrip in de Woonwijk Lunetten. De cafetaria is gelegen in Winkelcentrum Lunetten. In het winkelcentrum zijn verschillende supermarkten, (afhaal-) restaurants en andere detailwinkels gevestigd. Door de ligging in een winkelcentrum is de natuurlijke passantenstroom hoog.
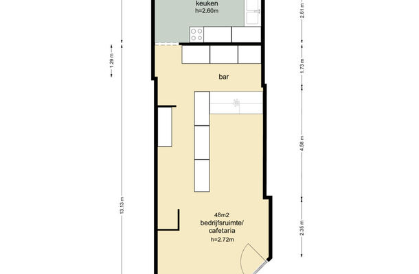
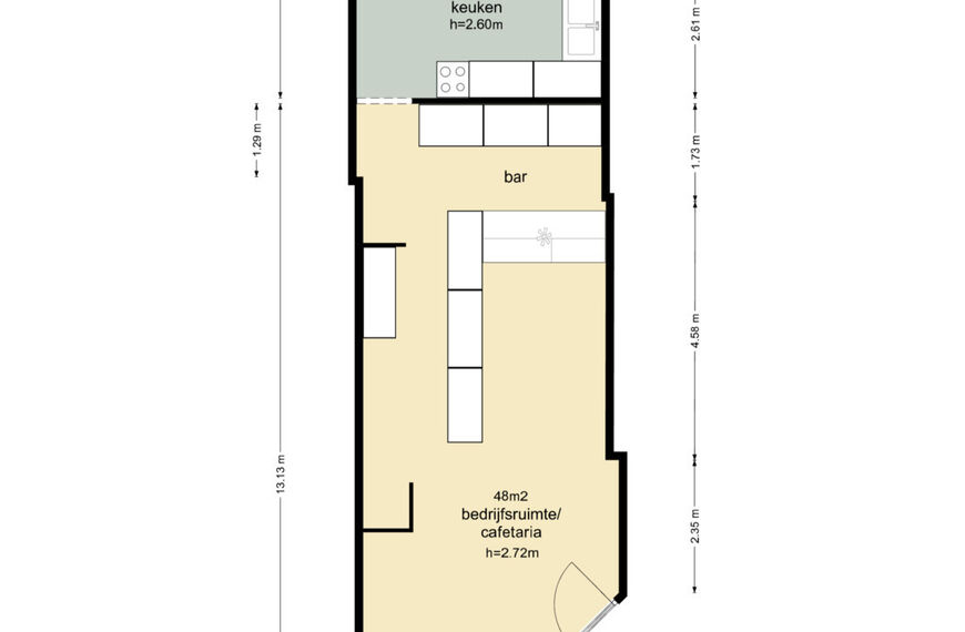
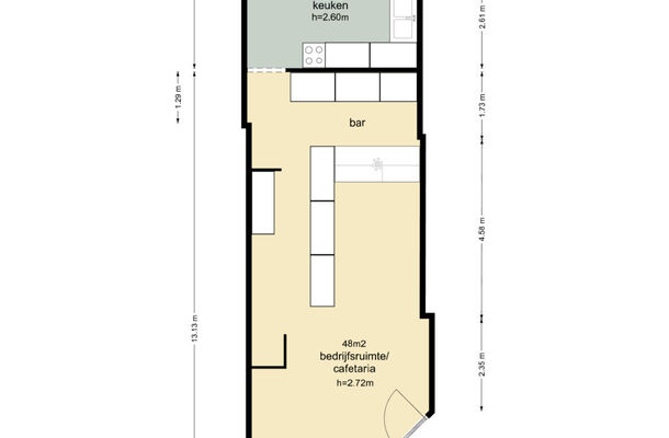
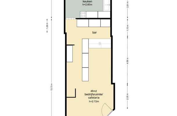
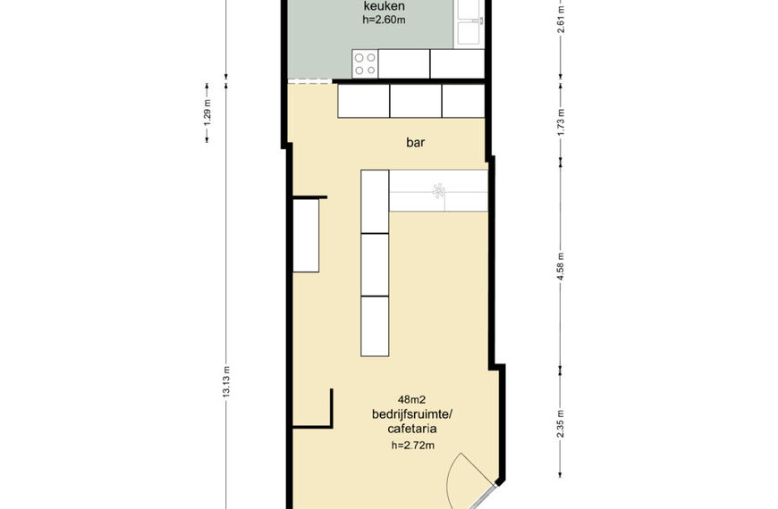
De cafetaria heeft een oppervlakte van circa 70,51m² VVO, waarvan 48m² de verkoopruimte betreft en 11 m² de keuken en opslag. Gasten van de cafetaria kunnen plaatsnemen in het restaurantgedeelte of op het terras. Het restaurant beschikt over 12 zitplaatsen en het terras ook over 12 zitplaatsen.
De jaarlijks geïndexeerde huursom bedraagt € 27.600,00. De jaarlijkse VVE bijdrage bedraagt € 1.209,67 per jaar en de bijdrage jaarlijkse canon bedraagt circa € 1.000 per jaar. Huurcontract ingangsdatum 01-03-2025 voor 5+5 jaar.
Deze belegging maakt onderdeel uit van een grotere beleggingsportefeuille en kan eveneens in combinatie met de eveneens verhuurde belendende winkelpanden op Zevenwouden 258 en 258B aangekocht worden voor een totale prijs van € 725.000,- kosten koper.
Deze informatie is met zorg samengesteld. Voor de juistheid daarvan kan echter geen aansprakelijkheid worden aanvaard, noch kan aan de vermelde gegevens enig recht worden ontleend. Alle opgaven van eventuele afmetingen zijn indicatief. Deze informatie dient slechts als uitnodiging om in onderhandeling te treden en kan derhalve niet worden beschouwd als een aanbod of offerte.
Deze belegging maakt onderdeel uit van een grotere beleggingsportefeuille en kan eveneens in combinatie met de eveneens verhuurde belendende winkelpanden op Zevenwouden 258 en 258B aangekocht worden voor een totale prijs van € 725.000,- kosten koper.
Deze informatie is met zorg samengesteld. Voor de juistheid daarvan kan echter geen aansprakelijkheid worden aanvaard, noch kan aan de vermelde gegevens enig recht worden ontleend. Alle opgaven van eventuele afmetingen zijn indicatief. Deze informatie dient slechts als uitnodiging om in onderhandeling te treden en kan derhalve niet worden beschouwd als een aanbod of offerte.