Valkenierlaan 13, 3721 BL BILTHOVEN
verkocht
Omschrijving
In een kleinschalig project in Bilthoven is onverwacht één woning beschikbaar gekomen. Het betreft bouwnummer 1, straks huisnummer 13. Dit is uw kans om hier over iets meer dan een jaar te wonen! Start bouw na de bouwvak 2025, oplevering medio 2026!
Bent u op zoek naar een gelijkvloerse moderne woning, met alle hedendaagse gemakken, royaal van opzet, een besloten tuin, eigen parkeerplaatsen in een exclusief hofje met nieuwe buren die zich in dezelfde levensfase bevinden? Leest u dan even verder!
Het huis wordt te groot, de kinderen zijn de deur uit, het moet verduurzaamd worden. U wilt wèl alles gelijkvloers, maar vaak is een appartement het enige alternatief en net een te grote verandering.
In Bilthoven in de woonwijk Jachtplan, nabij de Soestdijkseweg Zuid hebben we nog één 'villament' terug in de verkoop gekregen, het betreft bouwnummer 1. De term zegt het al: het ontwerp is een mooie combinatie van een villa en appartement, met een eigen besloten tuin. Een unieke kans om in aanmerking te komen in een kleinschalig eigentijds nieuwbouwproject van zes villa’s. De Villamenten zijn ontworpen door architect Henk Leeflang op een rustige inbreidingslocatie, gelegen op loop- of fietsafstand van het gezellige centrum van Bilthoven.
In de Zes Villamenten maken we het mogelijk dat er gelijkvloers en royaal gewoond kan worden op 164m2 woonoppervlak. Er is gekeken naar een ideaal woonprogramma: twee slaapkamers, twee badkamers, een royale moderne lichte living met plafondhoogte van deels 3.75m (!) van waaruit je zo de tuin in loopt. Hier kan je met trots met vrienden en familie lekker buiten eten en nog genieten van een overzichtelijke afmeting van de tuin. De Villamenten zijn voorzien van een inpandige berging, een technische ruimte/bijkeuken en twee eigen parkeerplaatsen. Ook over uitbreiding en aanpassingen is goed nagedacht. Zo is het mogelijk om de berging te vergroten, een carport te kiezen, een garage aan te bouwen of een deel van de villa te onderkelderen. Vooraf is al aangegeven dat de keuken op twee plekken in de royale living voorbereid kan worden. Over alle mogelijkheden van deze ontwikkeling informeren we u graag!
Het hofje wordt ontsloten via de Valkenierslaan. In het gemeenschappelijke binnenterrein worden zes bezoekersparkeerplaatsen gerealiseerd en elke woning heeft twee privé parkeerplaatsen.
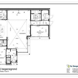
Indeling:
Entree aan de voorzijde van de woning. Hier vindt u de in de hal het toilet met fonteintje, de meterkast en de garderobehoek. Vanuit de hal gaat u de living binnen van meer dan 60m2 met daarnaast de beschikbare ruimte van ca. 16m2 voor de opstelling van de woonkeuken met mogelijkheid voor kookeiland. Vanuit de keuken heeft u toegang tot de technische ruimte/bijkeuken. Hier vindt u de opstelling van de warmtepomp, warmte terugwininstallatie en wasmachine- en drogeraansluiting. Kenmerkend voor de living is de grote hoeveelheid lichtinval doordat het plafond voor het grootste deel is opgetild tot een hoogte van 3.75m! Hierin is veel glas toegepast waardoor het een speels en licht effect geeft aan de living. Vanuit de woonkamer betreedt u via de schuifpui de tuin.
Vanuit de hal bij de entree gaat u de slaapkamer binnen met badkamer en suite: deze wordt standaard voorzien van een 2e toilet, wastafel en inloopdouche.
Vanuit de living kunt u met een deur naar de gang waaraan u de master bedroom treft met schuifpui naar de tuin. De tweede badkamer is voorzien van een ligbad, dubbele wastafel, 3e toilet en inloopdouche. De inpandige berging is bereikbaar vanuit de gang en heeft een deur naar buiten.
Bijzonderheden:
• De koopsom is vrij op naam en exclusief keuken
• De koopsom is inclusief een stelpost voor sanitair en tegelwerk van € 15.000,- inclusief BTW. Bij de projectleverancier kunt u voor dit bedrag zelf het sanitair en tegelwerk uitkiezen. Komt u boven het bedrag van € 15.000,- uit dan betaalt u bij. Indien u de badkamers en toilet casco wil laten opleveren dan krijgt u dit volledige bedrag retour om elders te besteden. In het geval dat u de badkamers en het toilet casco laat opleveren dan kunt u het sanitair en tegelwerk in eigen regie (laten) plaatsen ná oplevering van de woning.
• Verwarming is geregeld d.m.v. een lucht-water warmtepomp waarvan de binnenunit in de technische ruimte wordt geplaatst en de buitenunit op het platte dak. Alle vertrekken worden voorzien van vloerverwarming die voor elke verblijfsruimte separaat zijn in te regelen met mogelijkheid van vloerkoeling.
• Alle vertrekken zijn ruimschoots voorzien van elektra en loze leidingen.
• De Villamenten worden gebouwd met Woningborg Garantie.
• Neem contact op met ons kantoor als u belangstelling heeft, een unieke kans!
Bent u op zoek naar een gelijkvloerse moderne woning, met alle hedendaagse gemakken, royaal van opzet, een besloten tuin, eigen parkeerplaatsen in een exclusief hofje met nieuwe buren die zich in dezelfde levensfase bevinden? Leest u dan even verder!
Het huis wordt te groot, de kinderen zijn de deur uit, het moet verduurzaamd worden. U wilt wèl alles gelijkvloers, maar vaak is een appartement het enige alternatief en net een te grote verandering.
In Bilthoven in de woonwijk Jachtplan, nabij de Soestdijkseweg Zuid hebben we nog één 'villament' terug in de verkoop gekregen, het betreft bouwnummer 1. De term zegt het al: het ontwerp is een mooie combinatie van een villa en appartement, met een eigen besloten tuin. Een unieke kans om in aanmerking te komen in een kleinschalig eigentijds nieuwbouwproject van zes villa’s. De Villamenten zijn ontworpen door architect Henk Leeflang op een rustige inbreidingslocatie, gelegen op loop- of fietsafstand van het gezellige centrum van Bilthoven.
In de Zes Villamenten maken we het mogelijk dat er gelijkvloers en royaal gewoond kan worden op 164m2 woonoppervlak. Er is gekeken naar een ideaal woonprogramma: twee slaapkamers, twee badkamers, een royale moderne lichte living met plafondhoogte van deels 3.75m (!) van waaruit je zo de tuin in loopt. Hier kan je met trots met vrienden en familie lekker buiten eten en nog genieten van een overzichtelijke afmeting van de tuin. De Villamenten zijn voorzien van een inpandige berging, een technische ruimte/bijkeuken en twee eigen parkeerplaatsen. Ook over uitbreiding en aanpassingen is goed nagedacht. Zo is het mogelijk om de berging te vergroten, een carport te kiezen, een garage aan te bouwen of een deel van de villa te onderkelderen. Vooraf is al aangegeven dat de keuken op twee plekken in de royale living voorbereid kan worden. Over alle mogelijkheden van deze ontwikkeling informeren we u graag!
Het hofje wordt ontsloten via de Valkenierslaan. In het gemeenschappelijke binnenterrein worden zes bezoekersparkeerplaatsen gerealiseerd en elke woning heeft twee privé parkeerplaatsen.
Indeling:
Entree aan de voorzijde van de woning. Hier vindt u de in de hal het toilet met fonteintje, de meterkast en de garderobehoek. Vanuit de hal gaat u de living binnen van meer dan 60m2 met daarnaast de beschikbare ruimte van ca. 16m2 voor de opstelling van de woonkeuken met mogelijkheid voor kookeiland. Vanuit de keuken heeft u toegang tot de technische ruimte/bijkeuken. Hier vindt u de opstelling van de warmtepomp, warmte terugwininstallatie en wasmachine- en drogeraansluiting. Kenmerkend voor de living is de grote hoeveelheid lichtinval doordat het plafond voor het grootste deel is opgetild tot een hoogte van 3.75m! Hierin is veel glas toegepast waardoor het een speels en licht effect geeft aan de living. Vanuit de woonkamer betreedt u via de schuifpui de tuin.
Vanuit de hal bij de entree gaat u de slaapkamer binnen met badkamer en suite: deze wordt standaard voorzien van een 2e toilet, wastafel en inloopdouche.
Vanuit de living kunt u met een deur naar de gang waaraan u de master bedroom treft met schuifpui naar de tuin. De tweede badkamer is voorzien van een ligbad, dubbele wastafel, 3e toilet en inloopdouche. De inpandige berging is bereikbaar vanuit de gang en heeft een deur naar buiten.
Bijzonderheden:
• De koopsom is vrij op naam en exclusief keuken
• De koopsom is inclusief een stelpost voor sanitair en tegelwerk van € 15.000,- inclusief BTW. Bij de projectleverancier kunt u voor dit bedrag zelf het sanitair en tegelwerk uitkiezen. Komt u boven het bedrag van € 15.000,- uit dan betaalt u bij. Indien u de badkamers en toilet casco wil laten opleveren dan krijgt u dit volledige bedrag retour om elders te besteden. In het geval dat u de badkamers en het toilet casco laat opleveren dan kunt u het sanitair en tegelwerk in eigen regie (laten) plaatsen ná oplevering van de woning.
• Verwarming is geregeld d.m.v. een lucht-water warmtepomp waarvan de binnenunit in de technische ruimte wordt geplaatst en de buitenunit op het platte dak. Alle vertrekken worden voorzien van vloerverwarming die voor elke verblijfsruimte separaat zijn in te regelen met mogelijkheid van vloerkoeling.
• Alle vertrekken zijn ruimschoots voorzien van elektra en loze leidingen.
• De Villamenten worden gebouwd met Woningborg Garantie.
• Neem contact op met ons kantoor als u belangstelling heeft, een unieke kans!